5310 Renaissance Avenue
San Diego, CA 92122
$ 1,745,000
Price
4
Beds
3
Baths
2,706 Sq. Ft.
$645 / Sq. Ft.
6 Days On Market
Have You Been Pre-Qualified? Start Now
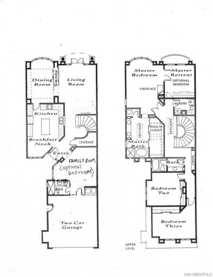
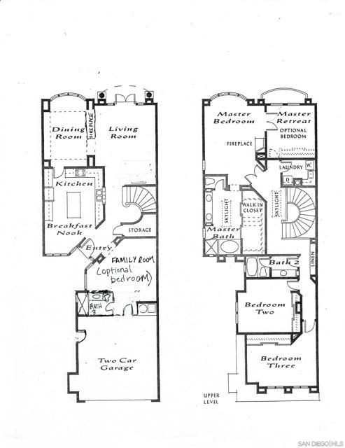
Beautifully upgraded home in gated Casabella! Stunning, well-maintained home featuring a custom-built kitchen with granite counters and a center island, high ceilings, and 3 fireplaces. Spacious primary suite with large walk-in closet and retreat (4th bedroom option—see floorplan). Rare first-floor full bath with an optional first-floor bedroom (with conversion). Upstairs laundry, generous room sizes, and an open, end location with no homes in front. Close to guest parking and community pool/spa. Nestled in the sought-after Renaissance La Jolla community, with its ultra-convenient location and charming European village atmosphere. Stroll along lushly landscaped greenbelts, complete with serene water features, to nearby shops and restaurants. Just down the street, a 25-acre park offers sports fields, a library, dog parks, pickleball courts, and a community recreation center. The acclaimed Westfield Shopping Center is easily accessed via the park across Towne Centre Dr. It provides a premier destination for dining, shopping, and entertainment—with upscale restaurants, a movie theater, boutiques, and gyms. Easy freeway access. There is a potential of up to 5 bedrooms—floor plan in photos. Natural light floods the spacious interior of this elegant Casabella home, streaming through wood-cased windows and French doors, accentuating its beautiful architectural details.. The primary retreat is an optional bedroom (with conversion- see floorplan in photos). There is a potential of up to 5 bedrooms with a bedroom and full bath on the first level.—floorplan in photos.
Want all these details? Sign In or Join Now